saved.archi

your architecture companion

Work

The 22 / JSª

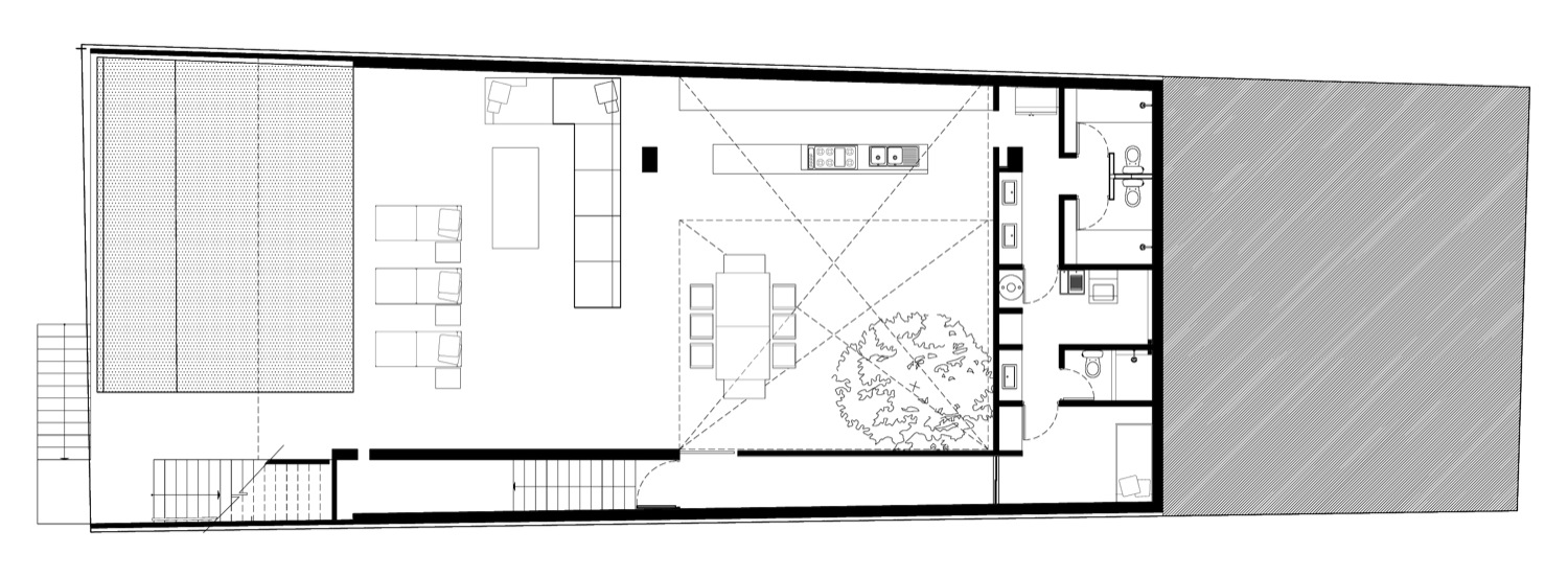
Completed in 2010 in Lima, Peru. Images by Eduardo Hirose. Facing a peruvian beach, 30 miles from Lima, El 22 is arranged with 4 beach apartments suitable for families. It's rectangular terrain has 389 m2 of...

building

built

2010

Lima, Lima Metropolitan Area, Peru

Apartments

0

Architects

1

Bureaus

0

Books

Plans, sections, diagrams, and source traces

Confirmed drawing sources are separated from broader provenance traces so the page can show useful precedent leads even before plan coverage is fully curated.

Stored plan and diagram records

Links explicitly tagged on the work record as plans, sections, diagrams, site drawings, or drawing sets.

Where to look next

Primary and approved publication links already attached to this work that are worth checking for drawings, plans, sections, and downloadable sets.

Primary source record attached to this work. Check here first for plans, sections, diagrams, or downloadable drawing sets.

Runtime context from mapping, climate, transit, and access providers

Gathering site context

Pulling place, climate, and nearby mobility signals for this work.

Primary, verified, captured, and archive traces attached to this work

Assembling project-source coverage

Pulling canonical links, verified sources, captured candidates, archive traces, and Phase 2 environmental context.

Material palette, carbon research, and classification scaffolding around the work

Building the material and carbon layer

Normalizing the palette, checking public classification systems, and preparing product-level research handoffs.

Practices attached to this work in the current corpus

Nearby precedents grouped by architect line, geography, material, typology, and decade.