saved.archi

your architecture companion

Work

NhaTrang House

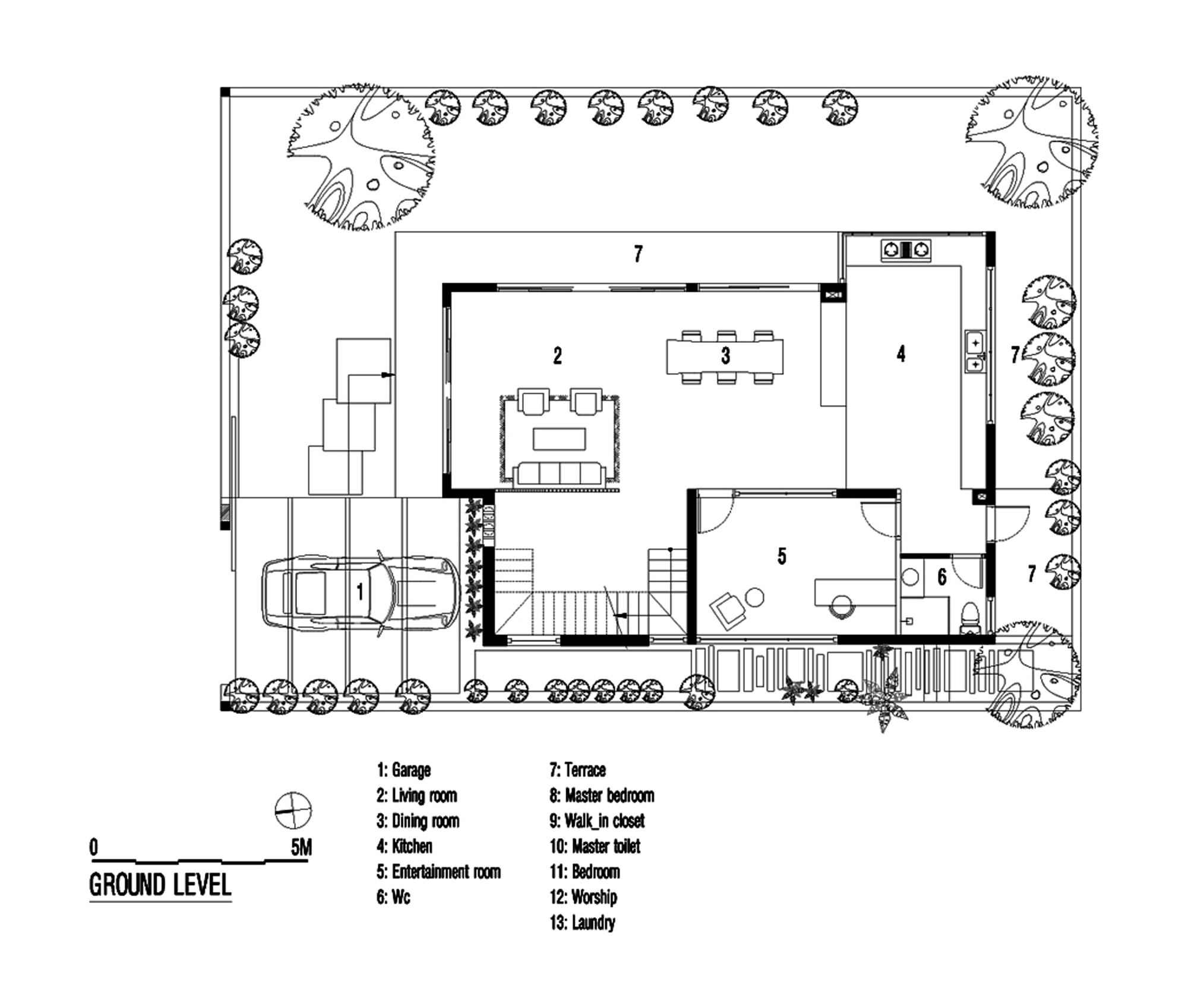
Completed in 2016 in Nha Trang, Vietnam. Images by Hiroyuki Oki. NhaTrang House is located in a calm, quiet area in Nha Trang city, distanced from the busy center of a city full of tourists. KAstudio approached the...

building

built

2016

Nha Trang, Khanh Hoa Province, Vietnam

Houses

0

Architects

0

Bureaus

0

Books

Plans, sections, diagrams, and source traces

Confirmed drawing sources are separated from broader provenance traces so the page can show useful precedent leads even before plan coverage is fully curated.

Stored plan and diagram records

Links explicitly tagged on the work record as plans, sections, diagrams, site drawings, or drawing sets.

Where to look next

Primary and approved publication links already attached to this work that are worth checking for drawings, plans, sections, and downloadable sets.

Primary source record attached to this work. Check here first for plans, sections, diagrams, or downloadable drawing sets.

Runtime context from mapping, climate, transit, and access providers

Site intelligence is not ready

A pinned work location or linked city is not available for this work yet.

Primary, verified, captured, and archive traces attached to this work

Assembling project-source coverage

Pulling canonical links, verified sources, captured candidates, archive traces, and Phase 2 environmental context.

Material palette, carbon research, and classification scaffolding around the work

Building the material and carbon layer

Normalizing the palette, checking public classification systems, and preparing product-level research handoffs.

Nearby precedents grouped by architect line, geography, material, typology, and decade.