saved.archi

your architecture companion

Work

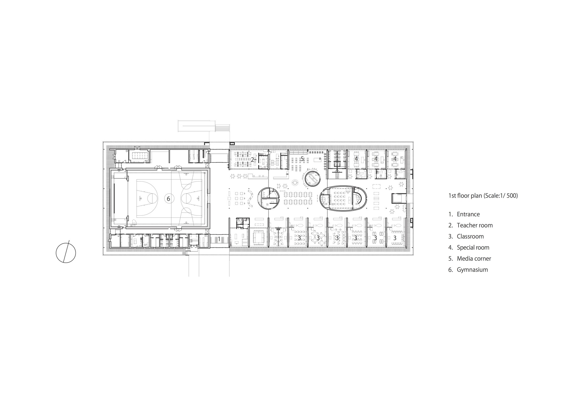
Itoi Elementary School

Completed in 2008 in Shibetsu, Japan. Images by Shinkenchiku-sha, Koji Sakai. This is a small elementary school with approximately ten students in each grade. A merger with neighboring towns has led to the disappearance of the...

building

built

2008

Shibetsu, Hokkaido Prefecture, Japan

Schools

0

Architects

1

Bureaus

0

Books

Plans, sections, diagrams, and source traces

Confirmed drawing sources are separated from broader provenance traces so the page can show useful precedent leads even before plan coverage is fully curated.

Stored plan and diagram records

Links explicitly tagged on the work record as plans, sections, diagrams, site drawings, or drawing sets.

Where to look next

Primary and approved publication links already attached to this work that are worth checking for drawings, plans, sections, and downloadable sets.

Primary source record attached to this work. Check here first for plans, sections, diagrams, or downloadable drawing sets.

Runtime context from mapping, climate, transit, and access providers

Site intelligence is not ready

A pinned work location or linked city is not available for this work yet.

Primary, verified, captured, and archive traces attached to this work

Assembling project-source coverage

Pulling canonical links, verified sources, captured candidates, archive traces, and Phase 2 environmental context.

Material palette, carbon research, and classification scaffolding around the work

Building the material and carbon layer

Normalizing the palette, checking public classification systems, and preparing product-level research handoffs.

Practices attached to this work in the current corpus

Nearby precedents grouped by architect line, geography, material, typology, and decade.