0
Architects
saved.archi
your architecture companion
Work
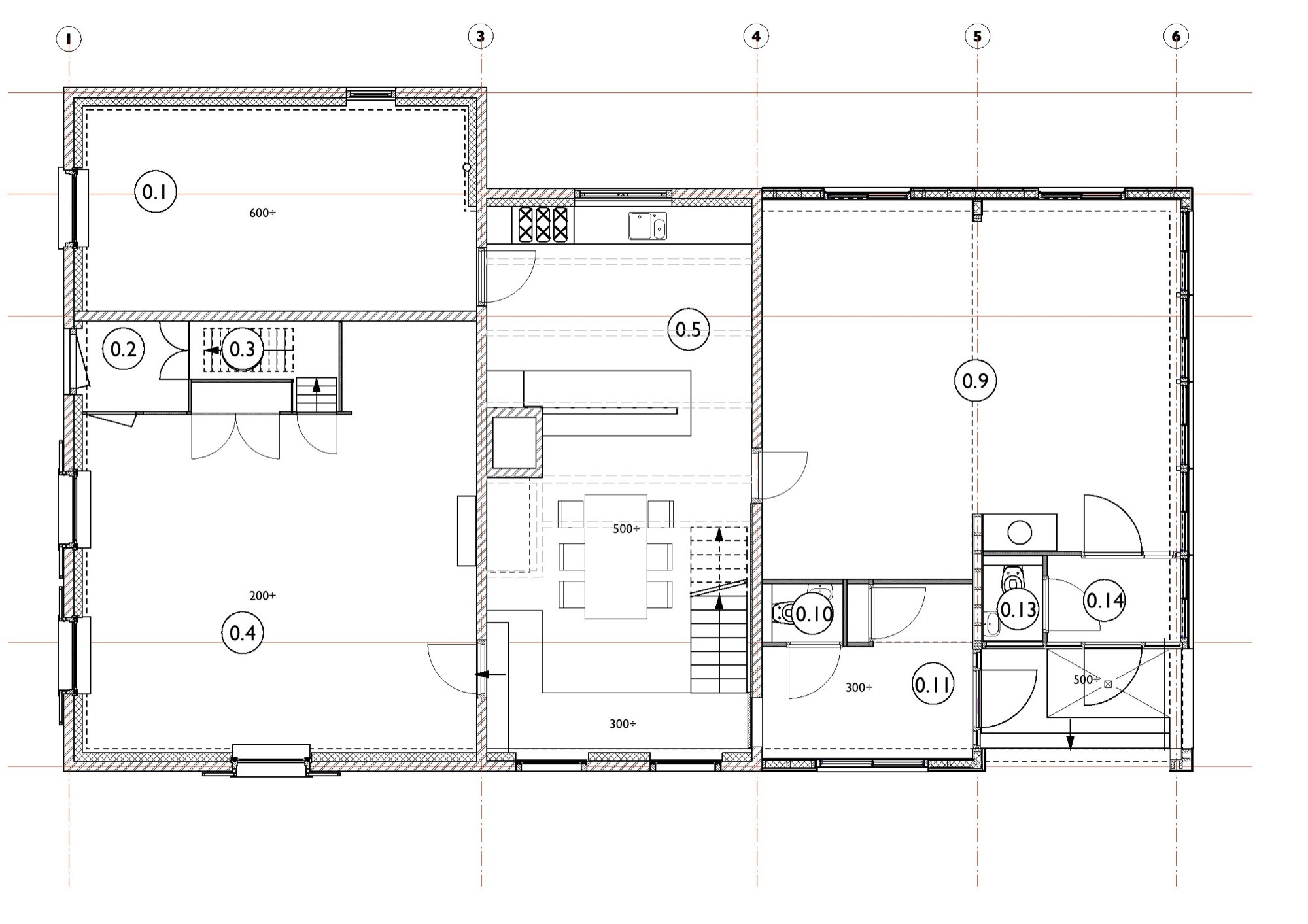
Completed in 2010 in Rotterdam, The Netherlands. Images by Architectenbureau di’t. An old derelict farmhouse near the centre of Rotterdam, came in the market as a building site. Van Leer recognized the quality of the existing...
0
Architects
1
Bureaus
0
Books
Spatial content
Confirmed drawing sources are separated from broader provenance traces so the page can show useful precedent leads even before plan coverage is fully curated.
Confirmed drawing sources
Links explicitly tagged on the work record as plans, sections, diagrams, site drawings, or drawing sets.

Source traces
Primary and approved publication links already attached to this work that are worth checking for drawings, plans, sections, and downloadable sets.
Primary source record attached to this work. Check here first for plans, sections, diagrams, or downloadable drawing sets.
Phase 1 site intelligence
Runtime context from mapping, climate, transit, and access providers
Unavailable
A pinned work location or linked city is not available for this work yet.
Project source graph
Primary, verified, captured, and archive traces attached to this work
Loading
Pulling canonical links, verified sources, captured candidates, archive traces, and Phase 2 environmental context.
Phase 3 materials and carbon
Material palette, carbon research, and classification scaffolding around the work
Loading
Normalizing the palette, checking public classification systems, and preparing product-level research handoffs.
Bureaus
Practices attached to this work in the current corpus
Related works
Nearby precedents grouped by architect line, geography, material, typology, and decade.