0
Architects
saved.archi
your architecture companion
Work
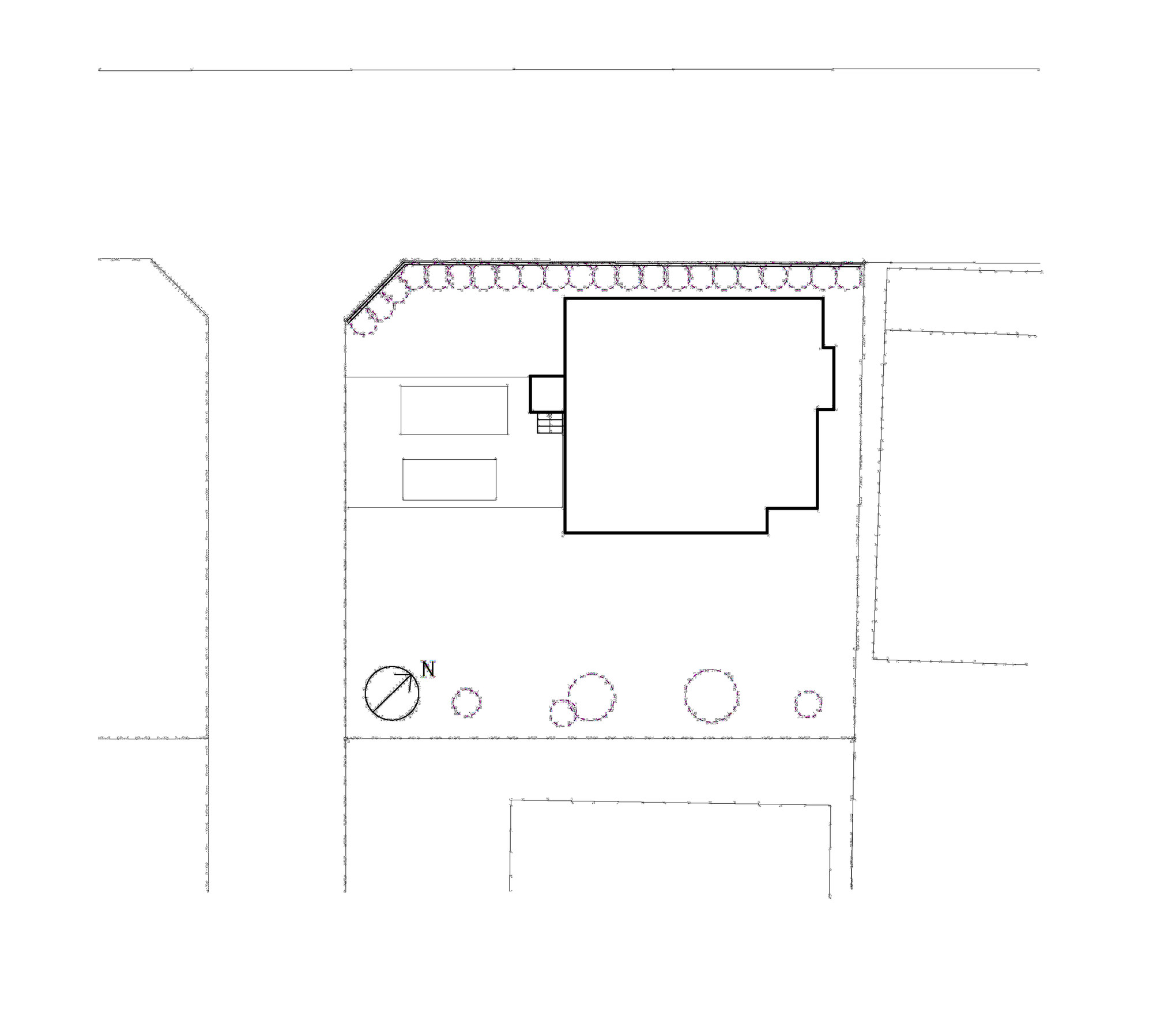
Completed in 2014 in Izumo, Japan. Images by Kai Nakamura. The project site is located in the Izumo Plain made of sands carried by the Hii River, leading to Lake Shinji, and the Kobe River, leading to the...
0
Architects
0
Bureaus
0
Books
Spatial content
Confirmed drawing sources are separated from broader provenance traces so the page can show useful precedent leads even before plan coverage is fully curated.
Confirmed drawing sources
Links explicitly tagged on the work record as plans, sections, diagrams, site drawings, or drawing sets.

Source traces
Primary and approved publication links already attached to this work that are worth checking for drawings, plans, sections, and downloadable sets.
Primary source record attached to this work. Check here first for plans, sections, diagrams, or downloadable drawing sets.
Phase 1 site intelligence
Runtime context from mapping, climate, transit, and access providers
Loading
Pulling place, climate, and nearby mobility signals for this work.
Project source graph
Primary, verified, captured, and archive traces attached to this work
Loading
Pulling canonical links, verified sources, captured candidates, archive traces, and Phase 2 environmental context.
Phase 3 materials and carbon
Material palette, carbon research, and classification scaffolding around the work
Loading
Normalizing the palette, checking public classification systems, and preparing product-level research handoffs.
Related works
Nearby precedents grouped by architect line, geography, material, typology, and decade.